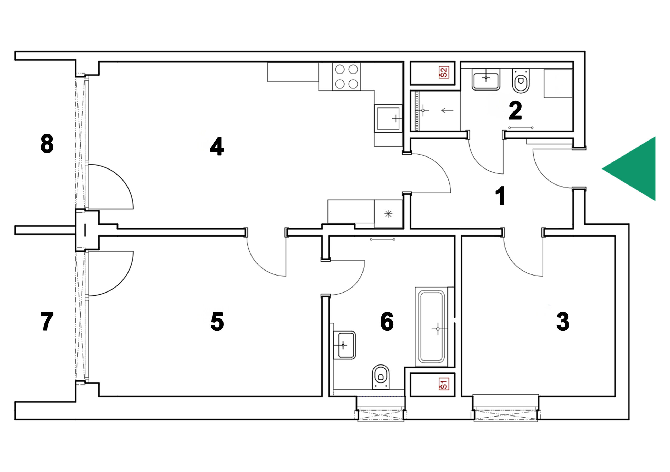
Apartmán č. 201

Dispozice 3+kk
Podlaží 2. NP
Terasa 9,33 m2
Plocha jednotky 76,55 m2
Stav v přípravě
#
1 Předsíň 6,82 m2
2 Koupelna + WC 4,58 m2
3 Pokoj 11,38 m2
4 Obývací pokoj + KK 23,47 m2
5 Pokoj 16,56 m2
6 Koupelna + WC 8,51 m2
7 Lodžie 4,69 m2
8 Lodžie 4,64 m2
Vnitřní užitná plocha 71,32 m2
Celková podlahová plocha 76,55 m2
#
#
#

Zajímá vás něco
dalšího?

Pokud budete mít jakékoliv dotazy, neváhejte nás kontaktovat prostřednictvím e-mailu, telefonu nebo kontaktního formuláře. Rádi se vám budeme věnovat a zodpovíme všechny vaše dotazy.

+420 731 544 904
info@homeland.cz

Harmonogram plateb

Rezervační
smlouva
do 5 dnů

Během následujících 5 dní podepíšete rezervační smlouvu a složíte poplatek v hodnotě 100 000 Kč.

Smlouva
o smlouvě budoucí
do 30 dnů

Do 30 dnů uzavřete smlouvu o smlouvě budoucí kupní a složíte poplatek v hodnotě 15% z ceny bytu.

Kupní
smlouva
po kolaudaci

Zbylou částku doplatíte při uzavření kupní smlouvy po kolaudaci bytu.